Zurück zur Übersicht

Bereits vermietet - Attika

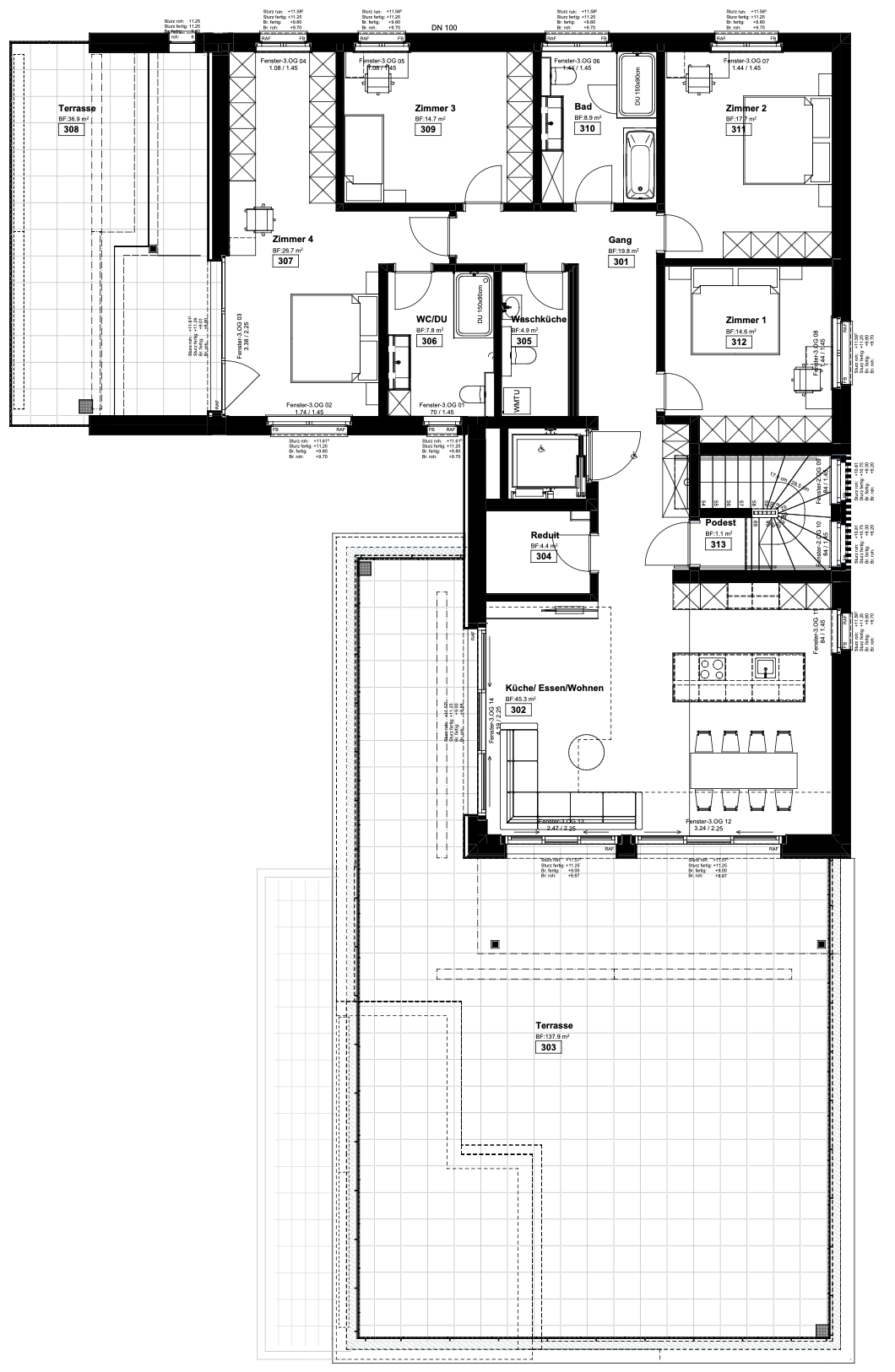
Die 5½-Zimmer-Attikawohnung bietet 170 m² Wohnfläche und eine rund 168 m² grosse Terrasse mit beeindruckender See- und Weitsicht auf den Ägerisee in ruhiger, moderner Neubau-Liegenschaft.Bezugstermin: 1. Juli 2026.

Wohnungsbeschreibung (Die dargestellte Küche ist eine exemplarische Visualisierung.)

Im Attikageschoss gelegen, verbindet diese Wohnung grosszügige Platzverhältnisse mit einem offenen, hellen Raumgefühl. Der weitläufige Wohn- und Essbereich öffnet sich direkt zur grossen Terrasse, sodass innen und aussen ineinander übergehen. Mehrere Zimmer lassen sich flexibel als Schlafzimmer, Gästezimmer oder Homeoffice nutzen und bieten damit vielfältige Nutzungsmöglichkeiten. Das grosse Kellerabteil sorgt zusätzlich für viel Stauraum.

Der Innenausbau entspricht dem hochwertigen Standard der gesamten Liegenschaft: In den Zimmern ist ein edler Eichenparkett verlegt, Wände und Decken sind mit einem weissen Abrieb (Körnung 1 mm) ausgeführt. Sämtliche Fenster sind 3-fach verglast und gewährleisten einen sehr guten Wärme- und Schallschutz. Im Eingangsbereich, in der Küche sowie im Wohn- und Essbereich kommen grossformatige Keramikplatten im Format 60 x 60 cm zum Einsatz, inklusive durchgehender Sockelleisten aus Keramik für ein einheitliches Erscheinungsbild.

Die moderne Küche ist mit hochwertigen Miele-Geräten ausgestattet, darunter Backofen und Steamer. Der Dampfabzug ist direkt in die Kochplatte integriert und funktioniert im Umluftbetrieb. Der Aussenbereich ist mit denselben Keramikplatten wie der Innenbereich belegt, wodurch ein fliessender Übergang entsteht. Die Nasszellen verfügen über Lavabo-Unterbaumöbel, teils keramisch verkleidete Wände und durchgehend verlegte Keramikbodenplatten, passend zum Wohnbereich.

In der ganzen Wohnung sind ausreichend Steckdosen vorhanden. LED-Deckenleuchten im Entrée und in der Küche sorgen für eine effiziente Grundbeleuchtung. Alle Fenster sind mit Storen ausgestattet, die Terrasse verfügt zudem über eine Markise zur Beschattung. Der Strom wird zu einem grossen Teil über Photovoltaikanlagen auf Dach und Fassade erzeugt. Diese Wohnung verfügt im Reduit über eine eigene Waschmaschine, einen Tumbler und ein Waschbecken. Im Entrée stehen Garderobe mit Kleiderstange und Einbauschrank zur Verfügung. Eine Schliessanlage mit Video-Sprechanlage sowie eine Paketbox im Eingangsbereich erhöhen den Wohnkomfort.

Der Lift erschliesst alle Stockwerke. Im Erdgeschoss verfügt die Wohnung über ein separates Kellerabteil mit Bretterverschlag. Ein Veloraum steht zur gemeinschaftlichen Nutzung bereit, Motorradabstellplätze können zusätzlich gemietet werden. Ebenfalls im Erdgeschoss befindet sich ein Trockenraum für alle Bewohnerinnen und Bewohner. Die Tiefgarage ist auf Elektromobilität vorbereitet, mit einem Anschlusskasten, damit die Stromabrechnung pro Wohnung individuell erfolgen kann. Besucherparkplätze sind ebenfalls vorhanden.

Lage

Das Mehrfamilienhaus am Althusweg liegt an einer bevorzugten und sehr ruhigen Wohnlage in Morgarten, Oberägeri. Der Ägerisee befindet sich nur rund 100 m entfernt und lädt zum Baden, zu vielfältigen Wasseraktivitäten sowie zu ausgedehnten Spaziergängen und Velotouren ein, alles abseits des Hauptverkehrs und mit hohem Erholungswert. Die Primarschule Morgarten liegt rund 790 m entfernt und ist ohne Strassenüberquerung erreichbar; ein durchgehend ausgebautes Fussgängertrottoir gewährleistet einen sicheren Schulweg. Die Bushaltestelle in etwa 100 m Distanz bietet eine gute Anbindung an den öffentlichen Verkehr, ein Restaurant liegt ebenfalls in kurzer Gehdistanz.

Die Lage direkt an der Landwirtschaftszone sorgt für ein besonders ruhiges Wohnumfeld mit freiem Blick in die Natur. Das Gebäude profitiert von einer traumhaften See- und Bergsicht sowie von einem optimalen Sonnenverlauf über den ganzen Tag. Die Schifffahrtsanlegestelle in ca. 120 m Entfernung erweitert das Freizeitangebot zusätzlich. Oberägeri verfügt über ein eigenes Schwimmbad, das nahegelegene Skigebiet und Naherholungsgebiet Sattel Hochstuckli bietet Sommer wie Winter zahlreiche Aktivitäten für Familien und Sportbegeisterte. Der Morgartenberg eignet sich ideal zum Velofahren und für Spaziergänge; als Belohnung wartet eine eindrucksvolle Aussicht über das Ägerital. Zudem führen zahlreiche Wanderwege zu den Alpwirtschaften der Region, welche die traditionelle Landschaft des Ägeritals prägen.

Auf rund 750 m über Meer gelegen, bleibt Morgarten oft oberhalb der Nebelgrenze, während tiefere Lagen im Nebel liegen. Auch das nahe Gebiet Raten mit St. Jost und dem Gotschalkenberg bietet attraktive Ausflugs- und Aussichtspunkte. Die Lage dieses Hauses entspricht genau dem Ort, an dem viele Menschen ihre Ferien verbringen möchten: ruhig, naturnah, sonnenverwöhnt und dennoch bestens erschlossen.

No items found.
Wohnfläche
Ballkon m2
Netto Miete Monat
Tiefgarage Plätze
Tiefgaragen Platz Preis
Tiefgaragen Miete Total
Nebenkosten Monat
Miete
inkl. Garage
exkl. Nebenkosten
170
168
6'000 CHF
2
150 CHF
300 CHF
Ca. 365 CHF
6'300 CHF
5.5
Zimmer