Zurück zur Übersicht

Bereits vermietet - OG 2 - 4.5 Zimmer Wohnung

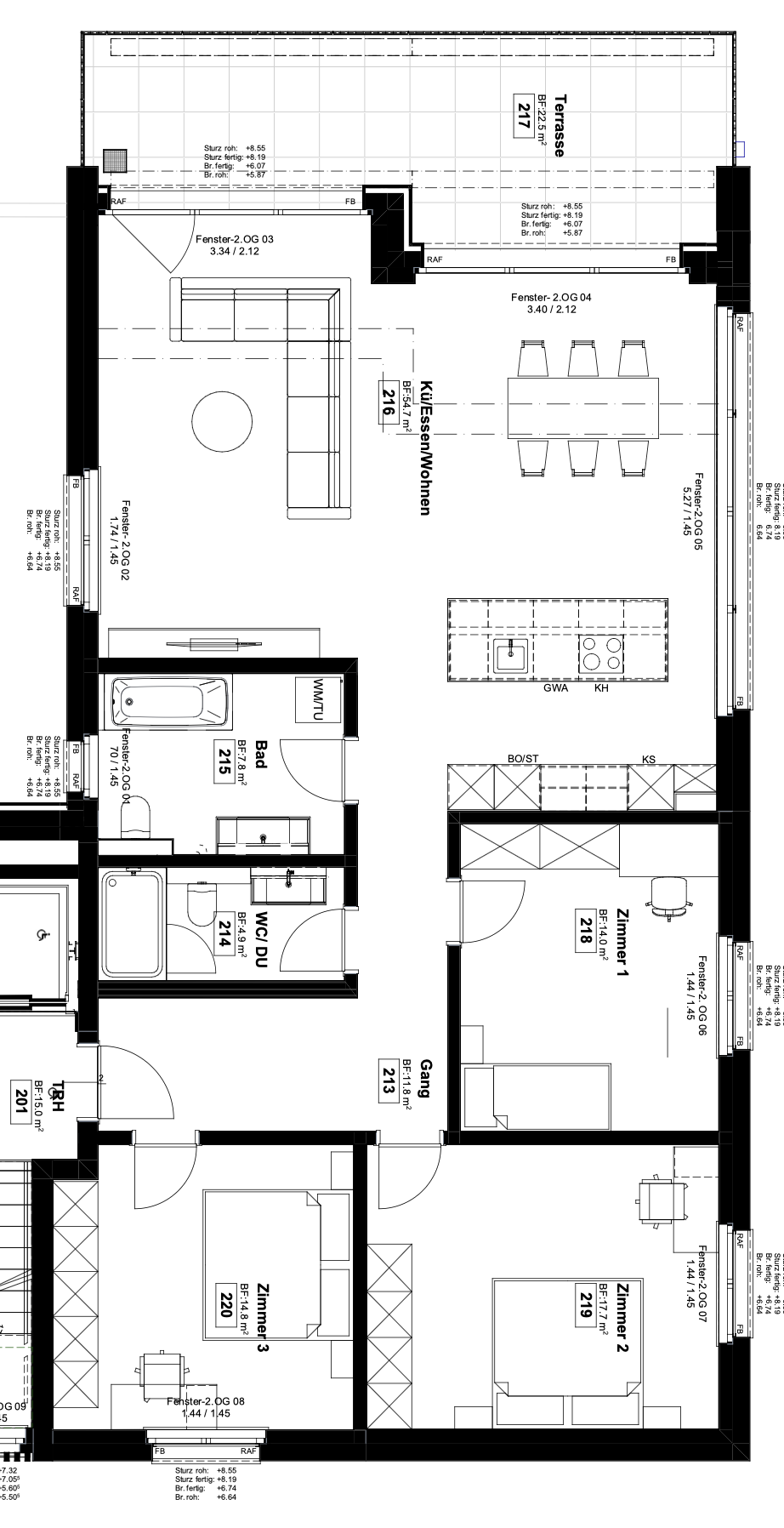
Die 4½ Zimmer Wohnung im 2. Obergeschoss bietet 127 m² Wohnfläche und eine Terrasse von rund 20.8 m² mit Sicht auf den Ägerisee. Ideal für Paare, Familien oder Wohnen mit Homeoffice. Bezugstermin: 1. Juli 2026.

Wohnungsbeschrieb (Die dargestellte Küche ist eine exemplarische Visualisierung.)

Die Wohnung überzeugt mit einem gut geschnittenen, sehr praktikablen Grundriss und viel Tageslicht. Auf 127 m² Wohnfläche lassen sich Wohnen, Arbeiten und Rückzug angenehm kombinieren. Der Wohn- und Essbereich bietet ausreichend Platz für einen grossen Esstisch und eine gemütliche Sofaecke und ist so angelegt, dass verschiedene Möblierungsvarianten möglich sind. Die weiteren Zimmer können individuell als Schlafzimmer, Kinderzimmer, Gästezimmer oder Büro genutzt werden und bieten damit viel Flexibilität für unterschiedliche Lebenssituationen.

Die Terrasse von etwa 20.8 m² ist direkt vom Wohnbereich aus zugänglich. Sie bietet Raum für einen Esstisch, eine kleine Lounge oder Pflanzen und öffnet den Wohnbereich Richtung Ägerisee. Hier lässt sich der Aussenraum im Alltag ebenso nutzen wie für gemütliche Stunden am Abend oder am Wochenende. Das Kellerabteil im Untergeschoss sorgt für zusätzlichen Stauraum für Sportgeräte, Vorräte, Koffer oder Saisonales.

Der Innenausbau entspricht dem hohen Standard der gesamten Liegenschaft. In den Zimmern ist ein hochwertiger Eichenparkett verlegt, der eine warme und ruhige Atmosphäre schafft. Wände und Decken sind mit einem weissen Abrieb mit Körnung 1 mm ausgeführt. Sämtliche Fenster sind 3-fach verglast und gewährleisten einen sehr guten Wärme- und Schallschutz. Der Eingangsbereich, die Küche sowie der Wohn- und Essbereich sind mit grossformatigen Keramikplatten im Format 60 x 60 cm ausgestattet. Durchgehende Sockelleisten aus Keramik sorgen für ein einheitliches und gepflegtes Erscheinungsbild.

Die moderne Küche ist mit hochwertigen Miele-Geräten ausgestattet, darunter Backofen und Steamer. Der Dampfabzug ist direkt in die Kochplatte integriert und funktioniert im Umluftbetrieb, wodurch auf eine sichtbare Dunstabzugshaube verzichtet werden kann. Der Balkon- und Terrassenbereich ist mit denselben Keramikplatten wie der Innenbereich belegt, was einen fliessenden Übergang zwischen innen und aussen schafft.

Die Nasszellen sind mit Lavabo-Unterbaumöbeln ausgestattet, die praktischen Stauraum bieten. Die Wandflächen sind teils mit Keramikplatten, teils mit Abrieb versehen. Die Bodenplatten entsprechen den im Wohnbereich verwendeten Keramikplatten und sind durchgehend verlegt, was zu einem stimmigen Gesamtbild beiträgt.

In der gesamten Wohnung sind ausreichend Steckdosen vorgesehen, damit Sie Ihre Einrichtung und technischen Geräte flexibel planen können. Im Eingangsbereich sowie in der Küche sorgen LED-Deckenleuchten für eine effiziente Grundbeleuchtung. Alle Fenster sind mit Storen ausgestattet. Zudem verfügt der Balkon über eine Markise zur Beschattung, sodass der Aussenraum auch an sonnigen Tagen angenehm genutzt werden kann.

Ein grosser Teil des Stroms wird über Photovoltaikanlagen auf dem Dach und an der Fassade erzeugt. Im Entrée befindet sich eine Garderobe mit Kleiderstange und Einbauschrank. Eine Schliessanlage mit Video-Sprechanlage sowie eine Paketbox im Eingangsbereich erhöhen den Wohnkomfort.

Der Lift erschliesst alle Stockwerke und sorgt für einen hindernisarmen Zugang zu Wohnung, Keller und Garage. Im Erdgeschoss verfügt die Wohnung über ein separates Kellerabteil mit Bretterverschlag. Ein Veloraum steht zur gemeinschaftlichen Nutzung bereit, Motorradabstellplätze können zusätzlich gemietet werden. Ebenfalls im Erdgeschoss befindet sich ein Trockenraum für alle Bewohnerinnen und Bewohner. Die Tiefgarage ist auf Elektromobilität vorbereitet. Der entsprechende Anschlusskasten wird bereitgestellt, sodass die Stromabrechnung für jede Wohnung individuell erfolgen kann. Besucherparkplätze sind ebenfalls vorhanden.

Lage

Das Mehrfamilienhaus am Althusweg liegt an einer bevorzugten und sehr ruhigen Wohnlage in Morgarten, Oberägeri. Der Ägerisee befindet sich nur rund 100 m entfernt und lädt zum Baden, zu vielfältigen Wasseraktivitäten sowie zu ausgedehnten Spaziergängen und Velotouren ein – alles abseits des Hauptverkehrs und mit hohem Erholungswert. Die Primarschule Morgarten liegt rund 790 m entfernt und ist ohne Strassenüberquerung erreichbar; ein durchgehend ausgebautes Fussgängertrottoir gewährleistet einen sicheren Schulweg. Die Bushaltestelle in etwa 100 m Distanz bietet eine gute Anbindung an den öffentlichen Verkehr, ein Restaurant liegt ebenfalls in kurzer Gehdistanz.

Die Lage direkt an der Landwirtschaftszone sorgt für ein besonders ruhiges Wohnumfeld mit freiem Blick in die Natur. Das Gebäude profitiert von einer traumhaften See- und Bergsicht sowie von einem optimalen Sonnenverlauf über den ganzen Tag. Die Schifffahrtsanlegestelle in ca. 120 m Entfernung erweitert das Freizeitangebot zusätzlich. Oberägeri verfügt über ein eigenes Schwimmbad; das nahegelegene Skigebiet und Naherholungsgebiet Sattel Hochstuckli bietet Sommer wie Winter zahlreiche Aktivitäten für Familien und Sportbegeisterte. Der Morgartenberg eignet sich ideal zum Velofahren und für Spaziergänge; als Belohnung wartet eine eindrucksvolle Aussicht über das Ägerital. Zudem führen zahlreiche Wanderwege zu den Alpwirtschaften der Region, welche die traditionelle Landschaft des Ägeritals prägen.

Auf rund 750 m über Meer gelegen, bleibt Morgarten oft oberhalb der Nebelgrenze, während tiefere Lagen im Nebel liegen. Auch das nahe Gebiet Raten mit St. Jost und dem Gotschalkenberg bietet attraktive Ausflugs- und Aussichtspunkte. Die Lage dieses Hauses entspricht genau dem Ort, an dem viele Menschen ihre Ferien verbringen möchten: ruhig, naturnah, sonnenverwöhnt und dennoch bestens erschlossen.

No items found.
Wohnfläche
Ballkon m2
Netto Miete Monat
Tiefgarage Plätze
Tiefgaragen Platz Preis
Tiefgaragen Miete Total
Nebenkosten Monat
Miete
inkl. Garage
exkl. Nebenkosten
127 m2
21 m2
4'050 CHF
2
150 CHF
300 CHF
Ca. 281 CHF
4'350 CHF
4.5
Zimmer